Jessica Phillips

Alvord Day

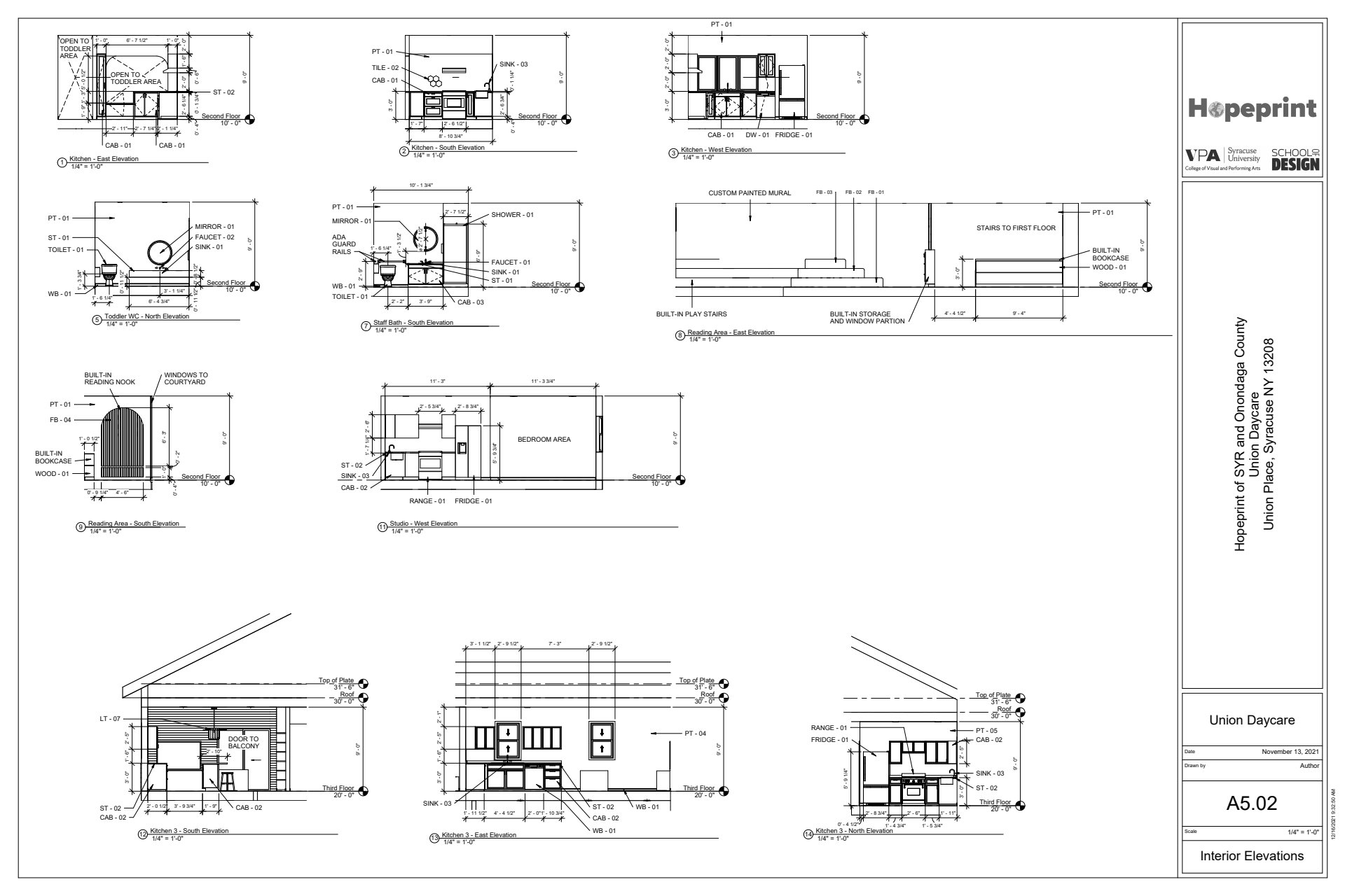
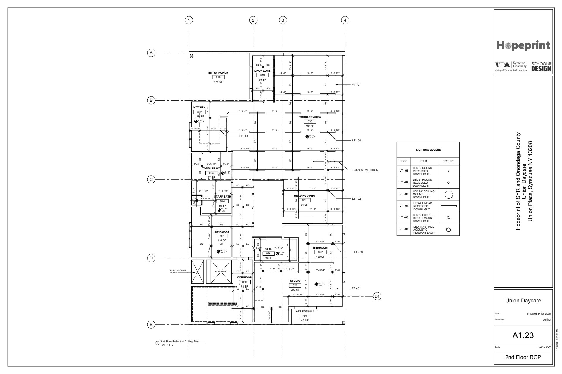
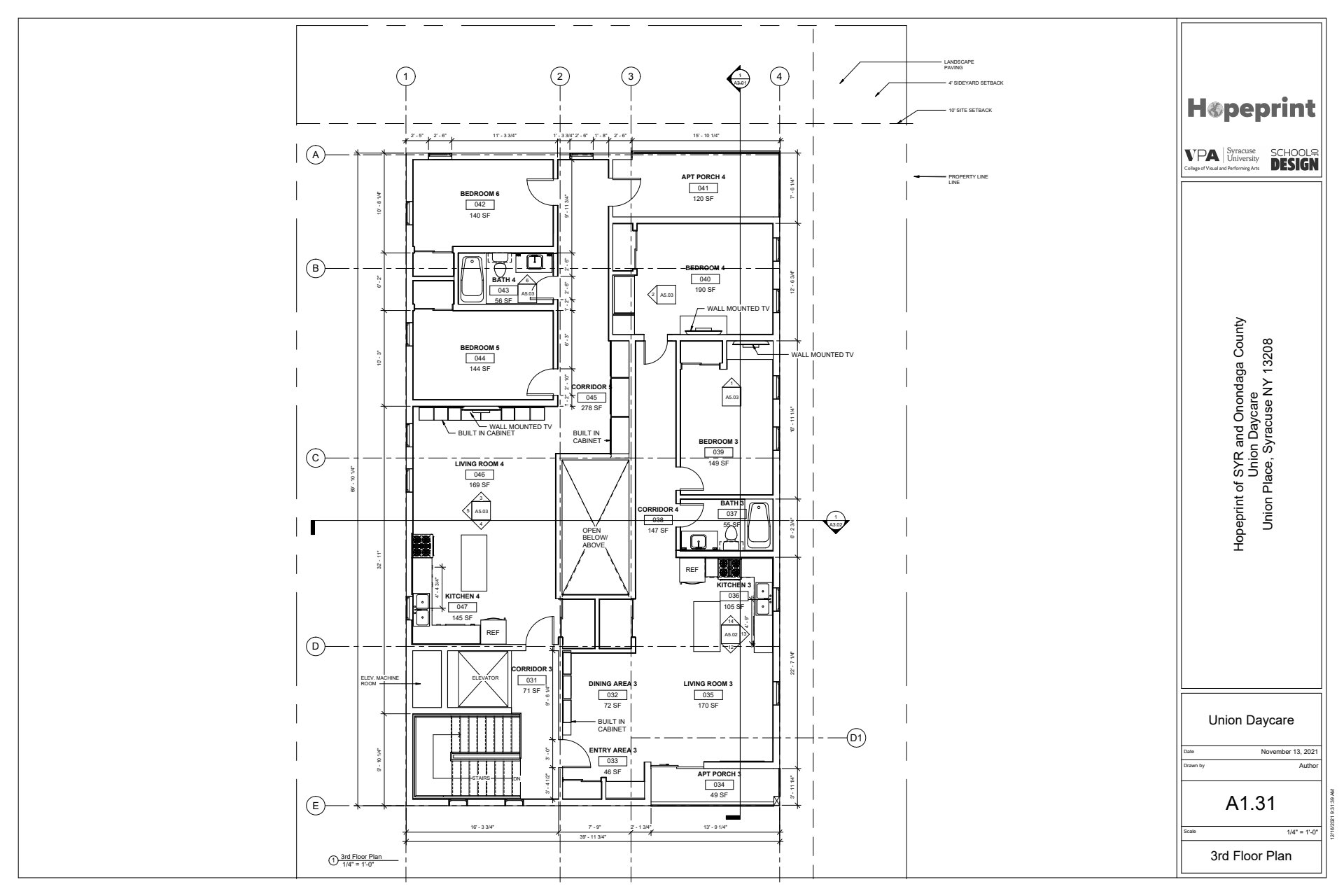
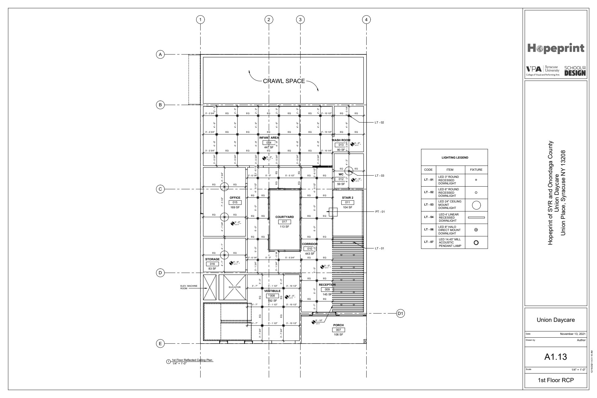
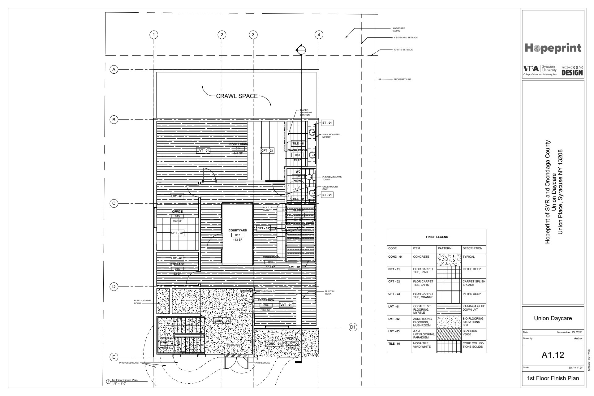
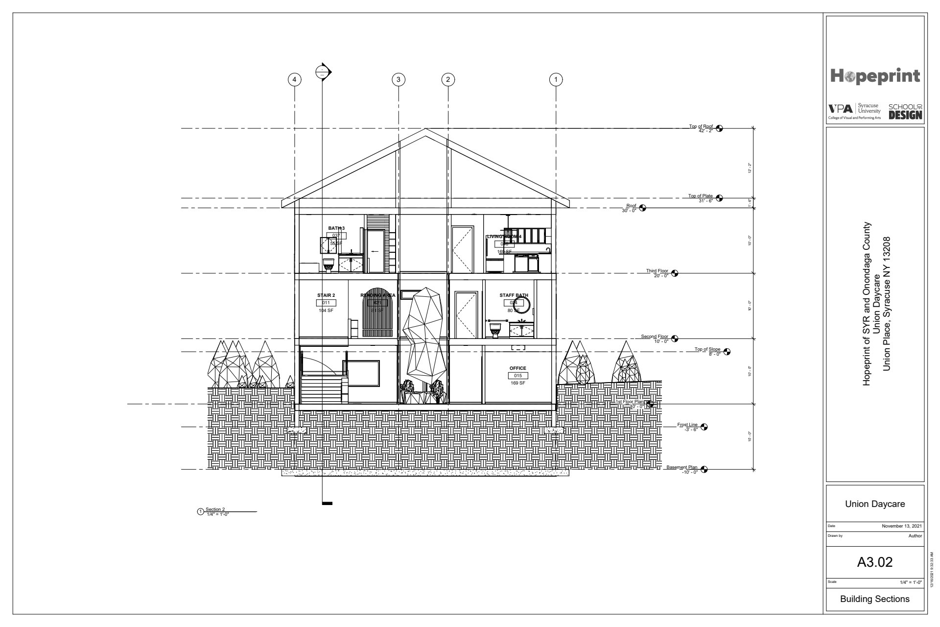
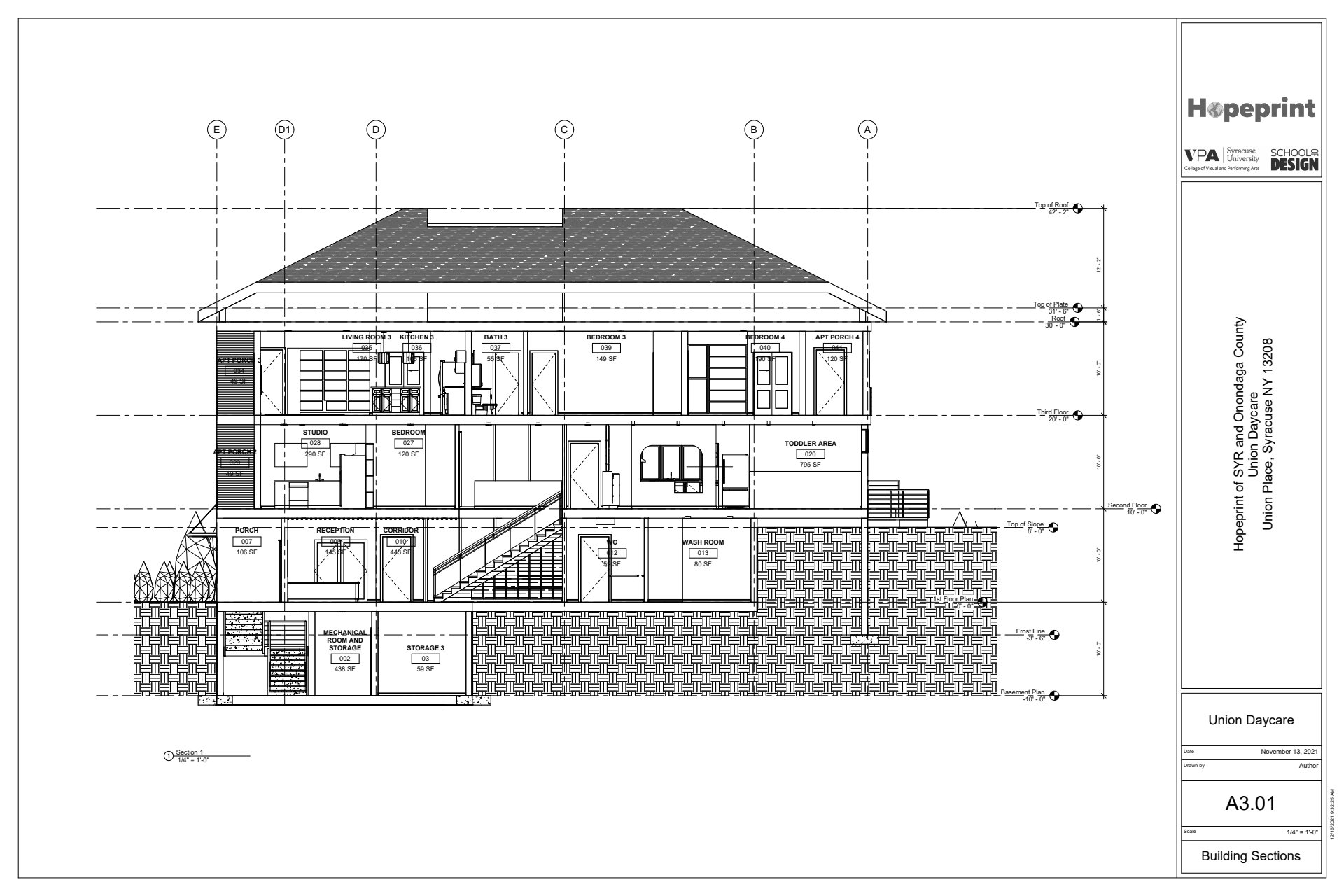
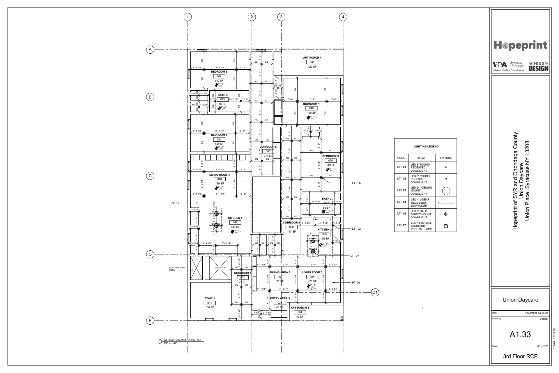
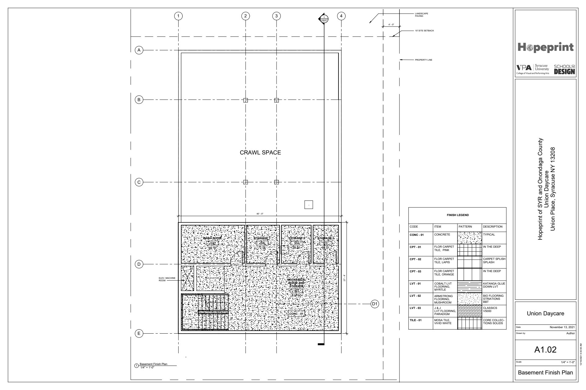
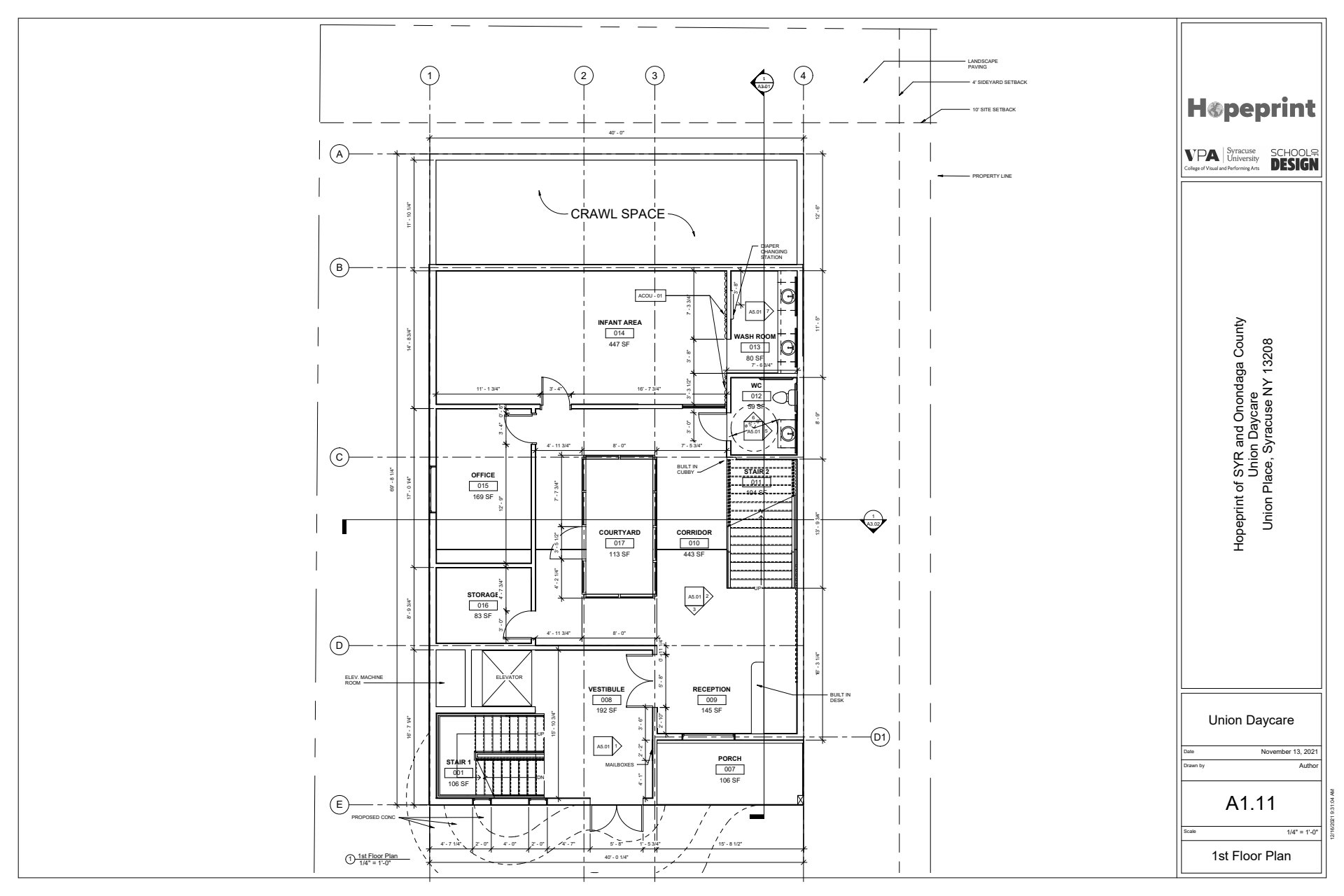
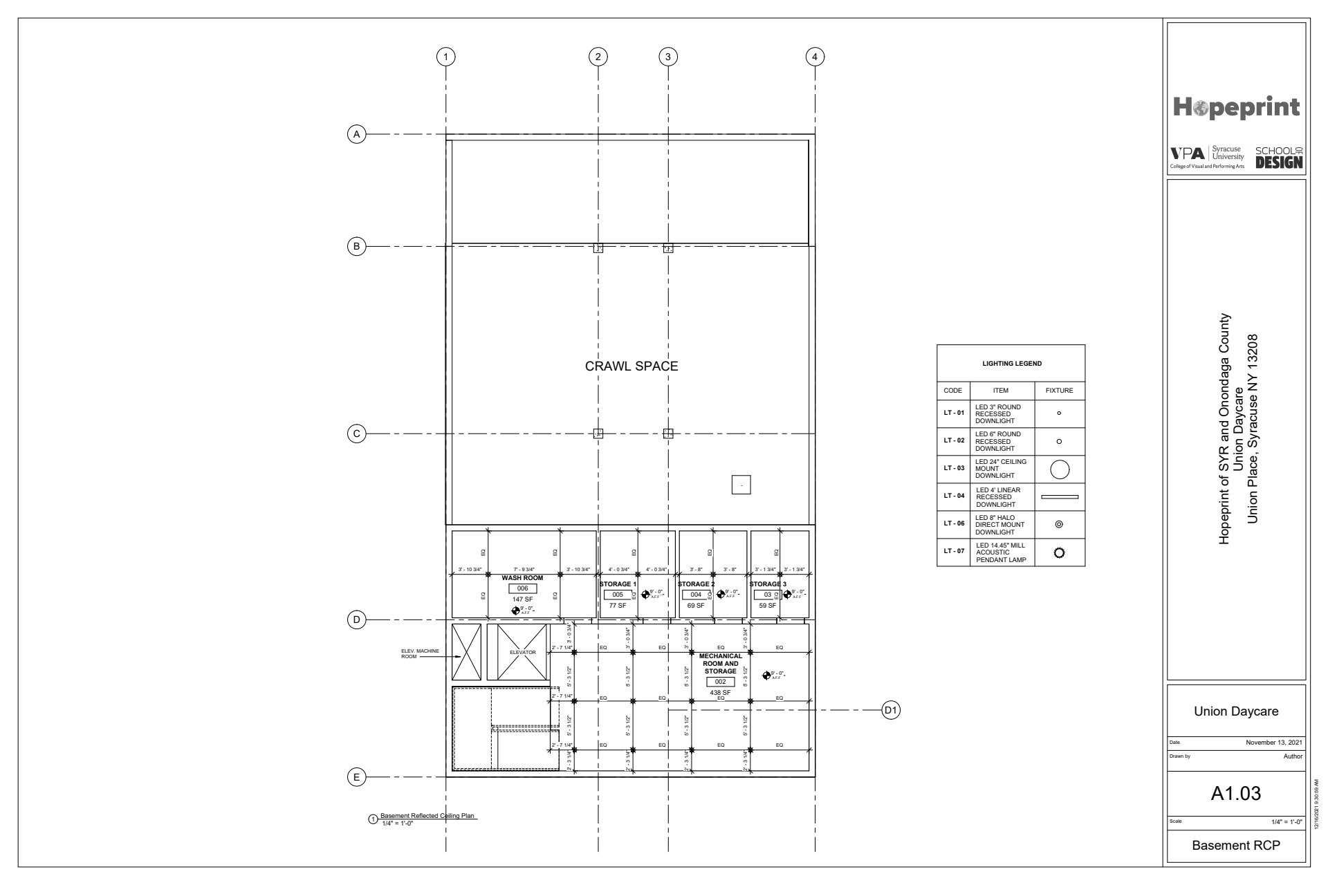
Daycare and Residential Apartments


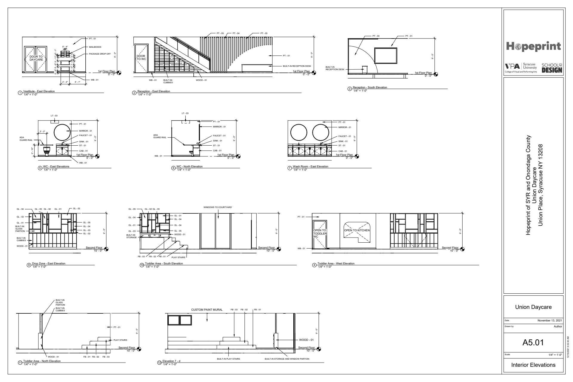
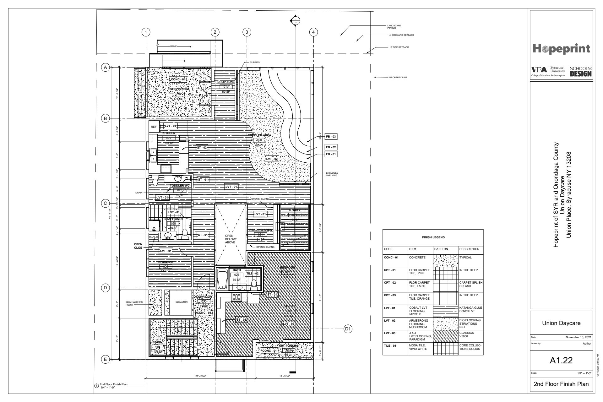
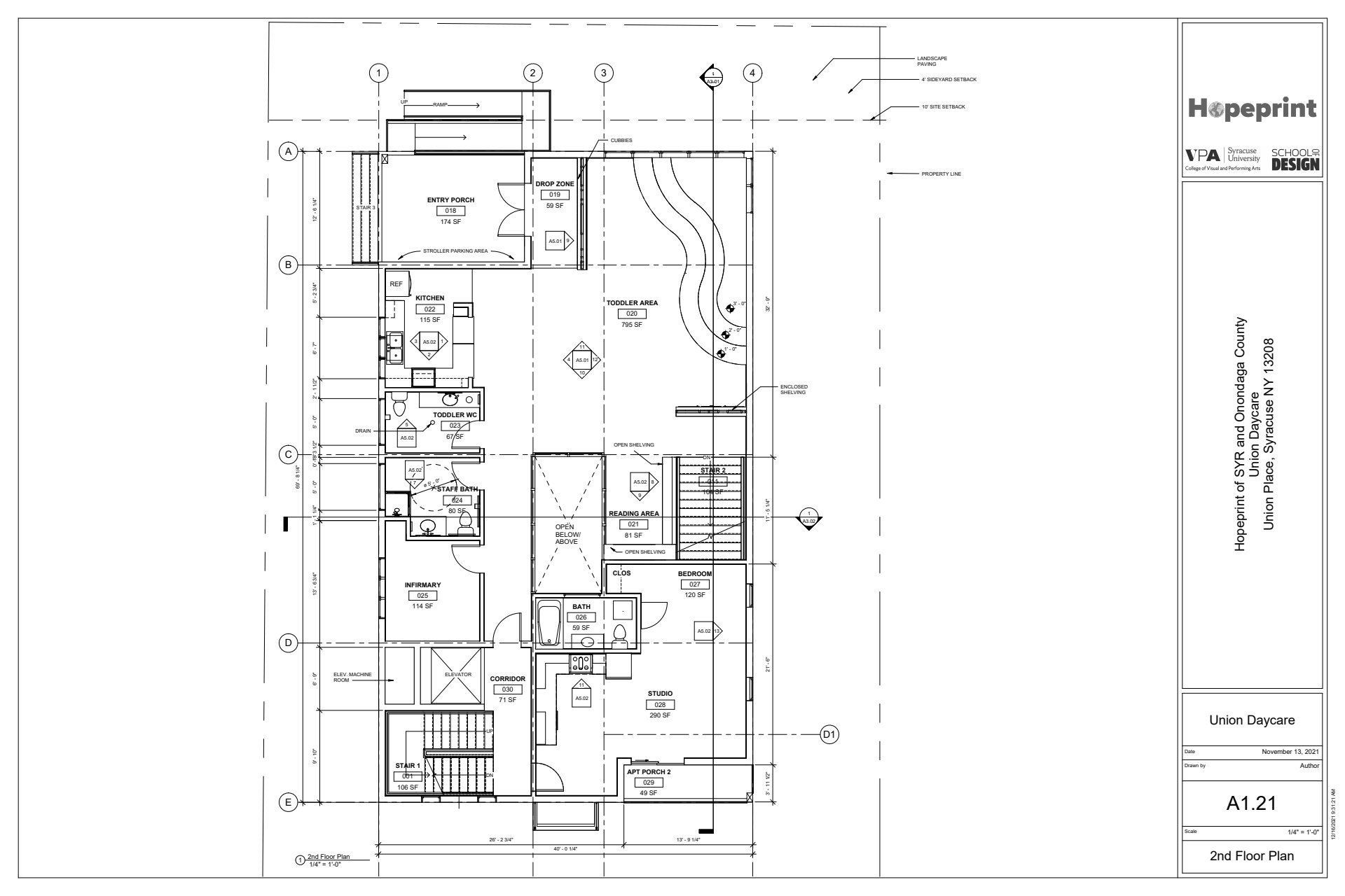
Reception and Cubby Area

Infant Area

Toddler Area

Toddler Play Area

Reading Nook

PROJECT LOCATION

400 N. Alvord St.

3,185 sq. ft


INDIVIDUAL ROLE

Revit Modeling

Rendering

Image Editing

Concept Development


GROUP MEMBERS

Destiney Sandle

Caroline Noone

Sachi Cecchetto

Alvord Day is part of a split occupancy building design serving two functions; the daycare is a commercial space and the apartments above are residential. The project’s client, Hopeprint, sought a space for residents of the Northside micro neighborhood to leave their children while living nearby.



Our goal as a group was to create a family oriented, culturally inclusive space which brings hope and stability to resettled refugees. The daycare features vibrant tones, an open interior courtyard to bring in light, and flexible play  areas for children.

Design Development Drawing Set

SITE RELATIONSHIP

The project site is located on the corner of North Alvord Street and Kirkpatrick Street. Inspired by organic forms found in nature, our design utilizes playful arches and windows that connect to the outside environment.

Our intent is to create an environment that welcomes Northside families and offers a space for place-making.  



To employ wellness and culture, our concept uses the courtyard to establish direct and indirect natural light. There is an emphasis

on curvilinear forms as a reflection of nature, balanced with bright colors as a reflection of the Northside’s cultural vibrancy.


VR Experience


Scan the QR code with your

phone for a virtual experience.