Jessica Phillips

Riverside Clinic

A Primary Health Clinic

Clinic Entrance – Full Renovation

Corridor Path – Full Renovation

Lounge Area – Full Renovation

Lounge/Kitchen – Full Renovation

Exam Room – Full Renovation

Aquarium Display – Partial Renovation

Clinic Entrance – Partial Renovation

Check-out Kiosks – Partial Renovation

Manager/Consultation Area – Partial Renovation

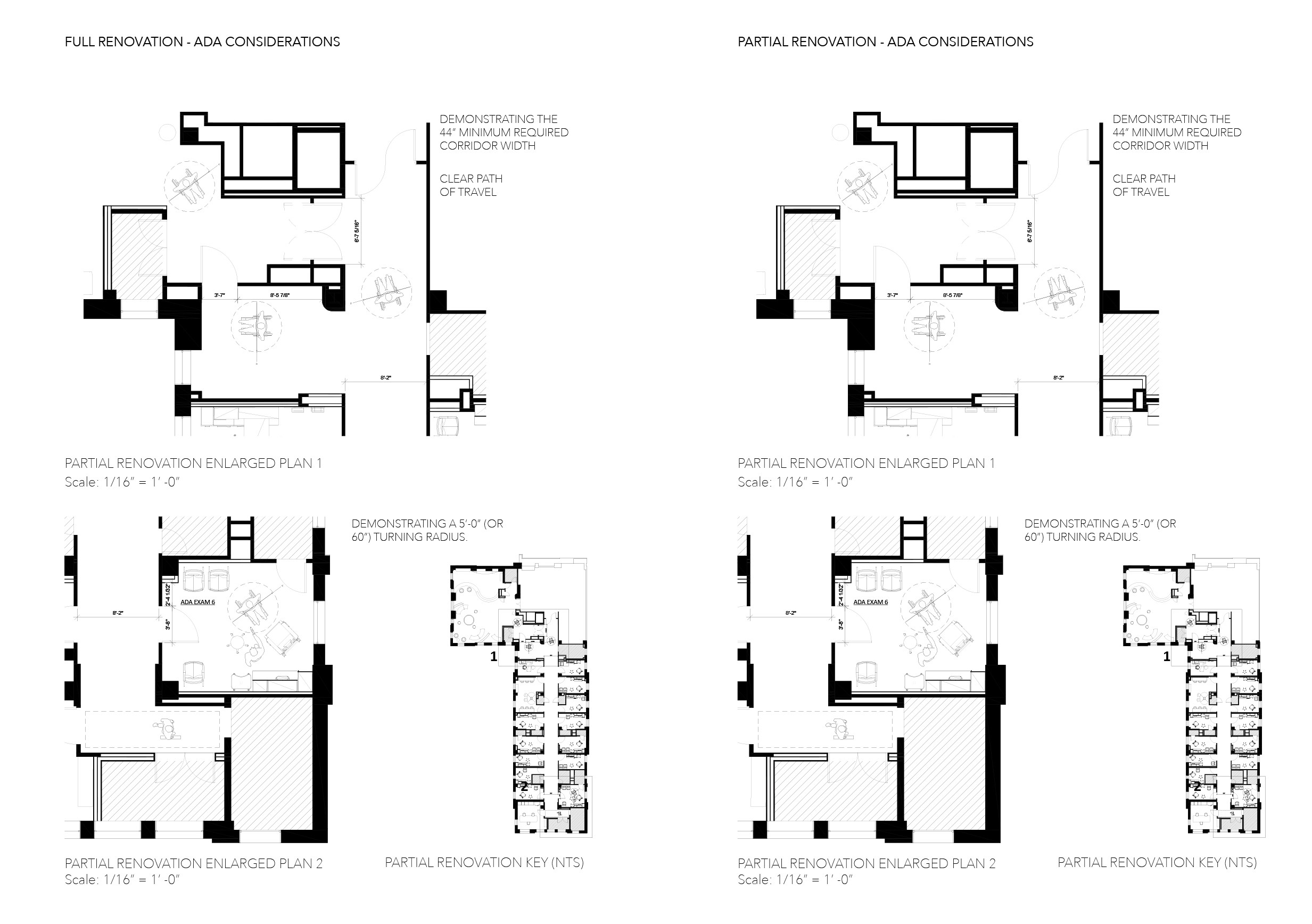
ADA Exam Room – Partial Renovation

Corridor View – Partial Renovation

PROJECT LOCATION

Chicago, Illinois

5,900 sq. ft.

To create a primary care clinic that provides patients a refuge from a busy city lifestyle, integrating positive distractions to reduce stress. The clinic utilizes lean design in a way to emphasize visual hygiene in a post pandemic world, so that staff can collaborate without relying on proximity. Health and well-being are combined with flexible interior arrangements, embracing a seamless modern design without jeopardizing equitable living spaces.

ADA Exam Room – Partial Renovation

Check-out Kiosks – Partial Renovation

Manager/Consultation Area – Partial Renovation

Corridor View – Partial Renovation

Aquarium Display – Partial Renovation

Clinic Entrance – Partial Renovation

SITE RELATIONSHIP

Riverside Clinic is a 5,900 square foot facility located on the 14th floor of a hypothetical Chicago skyscraper. The space is Northeast facing, so the clinic will experience sunrise in the waiting area while the exam rooms will experience more sun during the later part of the day.



Windows throughout the spaces allow views toward the nearby Chicago River, bringing in the  outside environment to the organic interior forms. The design features  a large aquarium display, self check-out stations, and accessible  

exam rooms.